Computer Vision

Camera model, Epipolar geometry

4-Arch

  1. pointline.png
    Point or Line? Using Line-based Representation for Panoptic Symbol Spotting in CAD Drawings
    Xingguang Wei, Haomin Wang, Shenglong Ye, and 7 more authors
    In The Thirty-ninth Annual Conference on Neural Information Processing Systems (NeurIPS), 2025
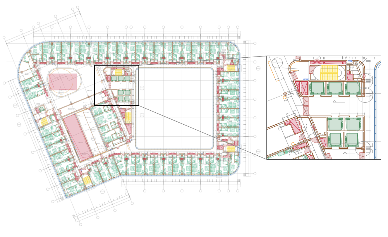
  2. archcad400k.png
    ArchCAD-400K: A Large-Scale CAD drawings Dataset and New Baseline for Panoptic Symbol Spotting
    Ruifeng Luo, Zhengjie Liu, Tianxiao Cheng, and 13 more authors
    In The Thirty-ninth Annual Conference on Neural Information Processing Systems (NeurIPS), 2025

3-Fashion

  1. dffFashion.jpg
    Difffashion: Reference-based fashion design with structure-aware transfer by diffusion models
    Shidong Cao, Wenhao Chai, Shengyu Hao, and 3 more authors
    IEEE Transactions on Multimedia, 2023
  2. prcv.png
    Taming Diffusion for Fashion Clothing Generation with Versatile Condition
    Yanting Zhang, Jingyi Guo, Cairong Yan, and 1 more author
    In Chinese Conference on Pattern Recognition and Computer Vision (PRCV), 2024

2-Traffic

  1. TransLink.png
    TransLink: Transformer-Based Embedding for Tracklets’ Global Link
    Yanting Zhang, Shuanghong Wang, Yuxuan Fan, and 2 more authors
    In ICASSP 2023-2023 IEEE International Conference on Acoustics, Speech and Signal Processing (ICASSP), 2023
  2. bundle.jpg
    Bundle adjustment for monocular visual odometry based on detections of traffic signs
    Yanting Zhang, Haotian Zhang, Gaoang Wang, and 2 more authors
    IEEE transactions on vehicular technology, 2019

1-Sport

  1. tfy.jpg
    Learning Golf Swing Key Events from Gaussian Soft Labels Using Multi-Scale Temporal MLPFormer
    Yanting Zhang, Fuyu Tu, Zijian Wang, and 2 more authors
    In 2023 International Joint Conference on Neural Networks (IJCNN), 2023
  2. TCSVT.jpg
    Pose-Guided Transformer for Fine-Grained Action Quality Assessment
    Yanting Zhang, Xia Li, Wenhao Chai, and 3 more authors
    IEEE Transactions on Circuits and Systems for Video Technology, 2025